Initial consultation
In our first meeting, we talk about your ideas for the garden and how you would like it to be. I get a sense of your vision and a feel for the surrounding location. Maybe you think your garden layout needs a quaint summer house, a beautifully designed pergola over the seating area, hammocks to relax in, or a soothing water feature. I can advise on what type of materials are best suited to your location and plans – natural yorkstone, sandstone or slate paving. Or perhaps a gravel surface such as pea shingle would work best? There are many exciting things to explore. My knowledge of the Design process means I can bring all the elements together to create a garden that flows, works well and looks great.
Site survey
For the next step, I measure your garden, record changes in levels and take photographs. Following this, I draw up a brief and quote.
Design
I present you with a Design drawn to scale.

You get a 2D elevation drawing of the garden which helps you to visualise it.

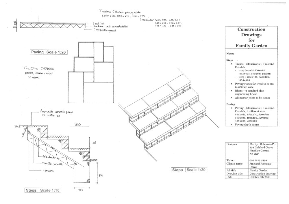
Construction drawings are presented if needed for the hard landscaper.

A mood board is also presented which includes images of the overall look.

The garden is prepared by the landscapers who carry out the project to my design specifications using my drawings and professional guidance.